Képes ingatlan és lakás kereső! - Budapest

Eladó lakás és ingatlan! - Budapest
Képes ingatlan és lakás kereső.
Válasszon a Belváros ingatlan kínálatából!
E-mail: info@funda.hu
            frissítve: 2025. szeptember 01.

Képes ingatlan és lakás kereső! - Budapest

Budapest - 8. kerület Bródy Sándor utca, Lakás

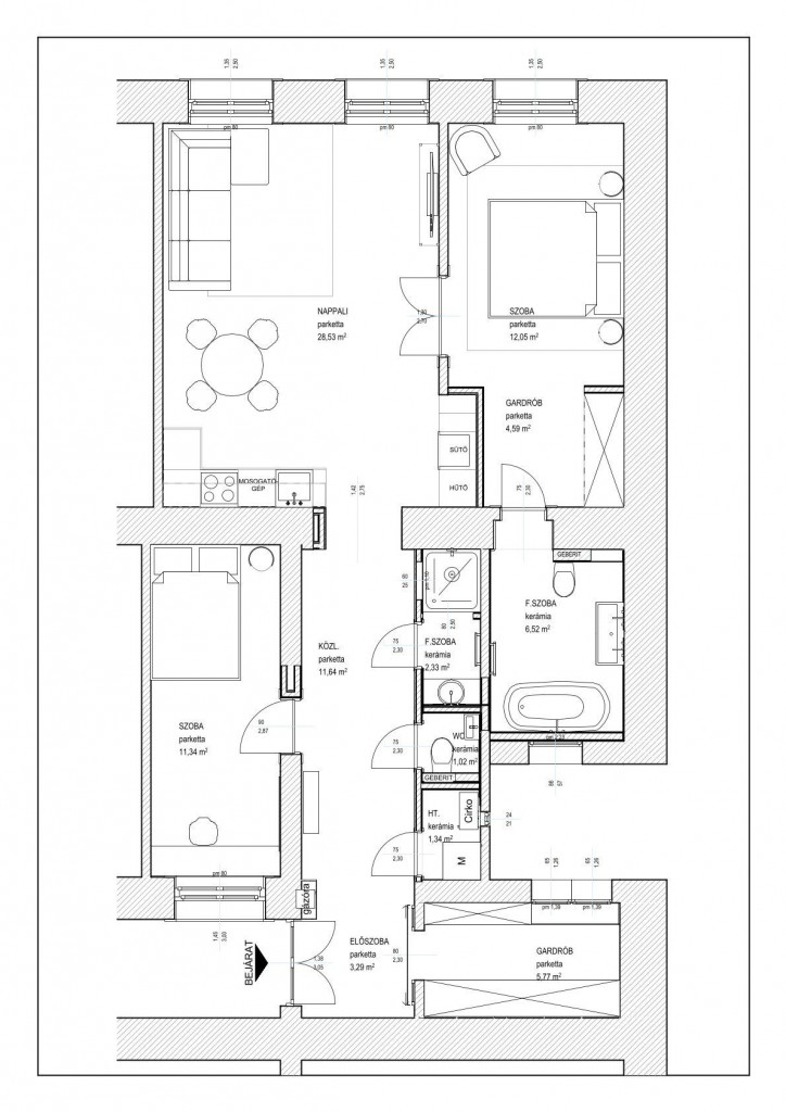
Exkluzív, lakberendező által megálmodott otthon a Palotanegyed szívében Fedezze fel ezt a teljes körűen felújított, különleges hangulatú lakást, amelyet belsőépítész gondos tervezése és minőségi kivitelezés tett igazán egyedivé. Az ingatlan a Palotanegyed egyik legkedveltebb utcájában, a Bródy Sándor utcában található, hangulatos kávézók és éttermek ölelésében, egy impozáns, felújított, üvegliftes társas házban. A tulajdoni lapon 85 m², a valóságban 88 m² alapterületű lakás tágas, világos terekkel várja új tulajdonosát. Elrendezése: 2 kényelmes hálószoba 2 modern fürdőszoba amerikai konyhás nappali elegáns, nagyméretű tükörfelületek, amelyek fokozzák a térérzetet A komfortot minden helyiségben klíma biztosítja, a padlófűtés és a meleg víz ellátás modern kombi kazánról működik. A lakás teljesen bútorozva és berendezve kerül értékesítésre, a felszereltség része többek között: Bosch konyhagépek egyedi gyártású bútorok tölgyfa parketta szigetelt fa nyílászárók elektromos redőnyök hangulatos bioetanol kandalló Az ár magában foglalja a bútorokat és dekorációt, így a lakás azonnal költözhető. Egy otthon, amely minden igényt kielégít – legyen az Öné!

 ÚJ INGATLAN 
28
Bródy Sándor utca 
190,000,000 Ft - 88 m2 
Eladó Lakás Budapest

190,000,000 Ft - 88 m²

 
Előszoba:  3.00 m² 
Gardrób:  6.00 m² 
Kamra:  1.00 m² 
Wc:  1.00 m² 
Közlekedő:  12.00 m² 
Hálószoba:  11.00 m² 
Fürdő:  2.00 m² 
Fürdő + wc:  7.00 m² 
Amerikai konyhás nappali:  29.00 m² 
Hálószoba:  12.00 m² 
Gardrób:  4.00 m² 

 

Ár:

190,000,000 Ft

IRSZ:1088

ID: chx51612

Ár/nm:

2235 EFt

Bródy Sándor utca

Hivatalos méret:

85 m²

emelet: 2.  szintek: 3

Valós méret:

88 m²

Lift: Hívós Típus: Lakás

Szobák:

Melegvíz:

Félszobák:

Nézet:

utca

Lakás állapot (1-7):

0

Épület külső (1-7):

6

Épület belső (1-7):

6

Fényviszonyok:

Napfényes

Fekvés:

Közös ktg./rezsi:

0

Fűtés:

Gáz (cirkó)

Hitel:

Nincs

Közlekedés:

Busz

Bródy Sándor utca 
190 MFt - 88 m2 
Eladó Lakás Budapest

Bródy Sándor utca 
190 MFt - 88 m2 
Eladó Lakás Budapest

Bródy Sándor utca 
190 MFt - 88 m2 
Eladó Lakás Budapest

Bródy Sándor utca 
190 MFt - 88 m2 
Eladó Lakás Budapest

Bródy Sándor utca 
190 MFt - 88 m2 
Eladó Lakás Budapest

Bródy Sándor utca 
190 MFt - 88 m2 
Eladó Lakás Budapest

Bródy Sándor utca 
190 MFt - 88 m2 
Eladó Lakás Budapest

Bródy Sándor utca 
190 MFt - 88 m2 
Eladó Lakás Budapest

Bródy Sándor utca 
190 MFt - 88 m2 
Eladó Lakás Budapest

Bródy Sándor utca 
190 MFt - 88 m2 
Eladó Lakás Budapest

Bródy Sándor utca 
190 MFt - 88 m2 
Eladó Lakás Budapest

Bródy Sándor utca 
190 MFt - 88 m2 
Eladó Lakás Budapest

Bródy Sándor utca 
190 MFt - 88 m2 
Eladó Lakás Budapest

Bródy Sándor utca 
190 MFt - 88 m2 
Eladó Lakás Budapest

Bródy Sándor utca 
190 MFt - 88 m2 
Eladó Lakás Budapest

Bródy Sándor utca 
190 MFt - 88 m2 
Eladó Lakás Budapest

Bródy Sándor utca 
190 MFt - 88 m2 
Eladó Lakás Budapest

Bródy Sándor utca 
190 MFt - 88 m2 
Eladó Lakás Budapest

Bródy Sándor utca 
190 MFt - 88 m2 
Eladó Lakás Budapest

Bródy Sándor utca 
190 MFt - 88 m2 
Eladó Lakás Budapest

Bródy Sándor utca 
190 MFt - 88 m2 
Eladó Lakás Budapest

Bródy Sándor utca 
190 MFt - 88 m2 
Eladó Lakás Budapest

Bródy Sándor utca 
190 MFt - 88 m2 
Eladó Lakás Budapest

Bródy Sándor utca 
190 MFt - 88 m2 
Eladó Lakás Budapest

Bródy Sándor utca 
190 MFt - 88 m2 
Eladó Lakás Budapest

Bródy Sándor utca 
190 MFt - 88 m2 
Eladó Lakás Budapest

Bródy Sándor utca 
190 MFt - 88 m2 
Eladó Lakás Budapest

 

A Hirdető adatai:

Németh Csaba

info@funda.hu

+36 70-3122794

Fundaingatlan Kft. - Bokréta 19.


Ingatlanok a városrészben (3):



85MFt - 49 m² - 4+0 szoba
8. Budapest, Csepreghy utca
emelet: fél emelet | nézet: utca
lift Nincs | fűtés: Kombi-cirkó
(chx47140)


144MFt - 101 m² - 3+1 szoba
8. Budapest, Bródy Sándor utca
emelet: 4. | nézet: utca
lift Hívós | fűtés: Gáz (cirkó)
(chx45730)


186MFt - 156 m² - 5+0 szoba
8. Budapest, Rákóczi út
emelet: 2. | nézet: utca
lift Hívós | fűtés: Házközponti
(chx48362)

Eladó lakás Budapest - Lakások, Ingatlanok - Bródy Sándor utca (Józsefváros - Palotanegyed - Nagykörúton belül) eladó Lakás
Ingatlan: Budapest 8 kerületben, Józsefváros - Palotanegyed - Nagykörúton belül, Bródy Sándor utca - Lakás